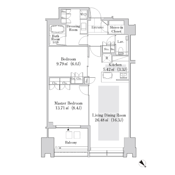
ラ・トゥール新宿ガーデン|ルームプラン

間取図

高級賃貸マンション|株式会社アライバル