MFPRコート目黒南|ルームプラン

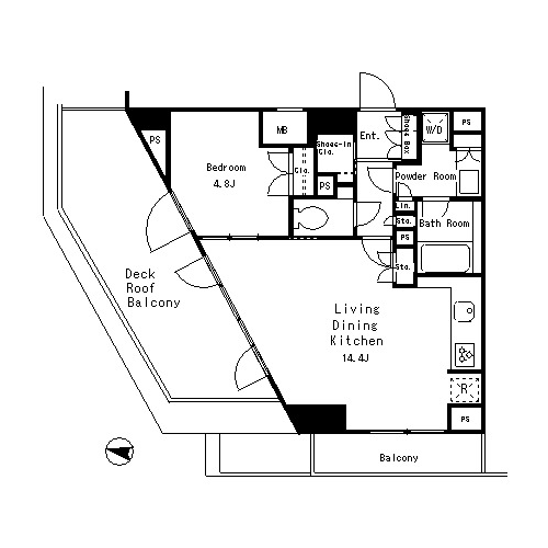
間取図


図面と現況が異なる場合は、現況を優先します。



高級賃貸マンション|株式会社アライバル