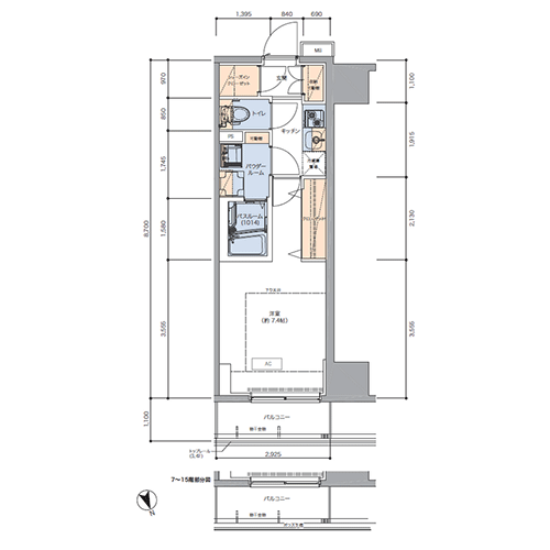
トラディティオ門前仲町|ルームプラン

高級賃貸マンション|株式会社アライバル