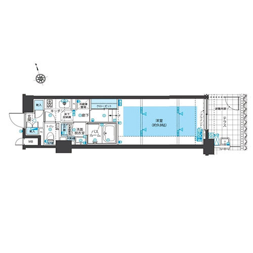
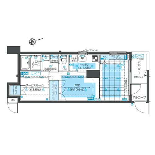
間取りのバリエーションは約40種類と豊富にご用意しており、多様なライフスタイルに対応しました。 各住戸内はコンクリート仕上げの壁面やお洒落なスポットライト照明も採用。 フローリングや各種建具の色彩にもこだわっており、高い美観性を実現しています。 また、一部住戸はお洒落な階段付きのメゾネット仕様。上下階にわたって射し込む陽光が室内を心地よく彩ります。
※間取り図と現況に相違がある場合は現況優先と致します。
※掲載の写真はプランの一例です。