ZOOM高田馬場WEST

お問い合わせ  
sp
空室一覧・賃料 sp 間取り図一覧

ZOOM高田馬場WEST:ルームプラン

sp

ZOOM高田馬場WEST:ルームプラン:見出し

sp

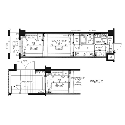
本物件では暮らしに必要な機能を凝縮した1R・1Kをはじめ、2室一体利用も可能な1DK・1LDKなど、
30種類以上の豊富な住戸プランをご用意しており、多彩なライフスタイルに対応します。
また、建具や各設備も上品なカラーでセンス良くコーディネートされており、住まいの上質感を高めました。

sp

※間取り図と現況に相違がある場合は現況優先と致します。

sp

ZOOM高田馬場WEST:室内写真

sp
ZOOM高田馬場WEST:ルームプラン01

※掲載の写真はプランの一例です。

sp
pagetop
sp