高級賃貸マンション:ディームス麻布狸穴町のロゴ
高級賃貸マンション:ディームス麻布狸穴町のお問い合わせ窓口
高級賃貸マンション:ディームス麻布狸穴町のロゴ

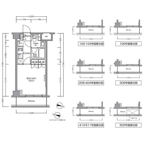
FLOOR PLAN
-間取り(1K:25.05㎡[B1タイプ])-

ディームス麻布狸穴町(1K:25.05㎡[B1タイプ])の間取り画像
ディームス麻布狸穴町のお問い合わせメールフォーム
CONTACT

内覧のご予約、物件に関する質問等は、
こちらのメールフォームからどうぞ。

 
ディームス麻布狸穴町の現在募集中の空室一覧
ROOM LIST

現在募集中の空室一覧

 

OUTLINE
-物件概要-

物件名
ディームス麻布狸穴町(旧称:パークハビオ麻布狸穴町)
所在地
東京都港区麻布狸穴町51番地1(住居表示)
東京都港区麻布狸穴町51番1(地番)
Google Mapで開く
交通
東京メトロ南北線・都営大江戸線 「麻布十番」駅(6番出口) 徒歩8分
東京メトロ南北線 「六本木一丁目」駅(2番出口) 徒歩8分
東京メトロ日比谷線 「神谷町」駅(2番出口) 徒歩10分
東京メトロ日比谷線・都営大江戸線 「六本木」駅(5番出口) 徒歩10分
構造
鉄筋コンクリート造地上6階建
総戸数
81戸
間取り
STUDIO(39戸) / 1K(30戸) / 1LDK+S(1戸) / 2LDK(11戸)
専有面積
25.04㎡(約7.57坪)~52.43㎡(約15.86坪)
賃料
月額123,000円~251,000円(竣工時)
共益費
月額10,000円~15,000円(竣工時)
契約形態
普通借家契約 又は 定期借家契約
※住戸により異なりますので、詳細はお問い合わせください。
契約期間
(普通借家契約)
2年間(更新可)
更新料
(普通借家契約)
新賃料の1ヶ月分
再契約料
(定期借家契約)
新賃料の1ヶ月分
敷金
賃料の1ヶ月分 ※保証会社利用必須。
礼金
賃料の0~1ヶ月分 ※募集住戸によって異なります。詳細は空室一覧をご参照ください。
住宅総合保険等
指定火災保険要加入
駐車場
有り(身障者用平置き:1台) ※空き状況はお問い合わせください。
駐車場料金
月額50,000円(別途消費税)
駐輪場
有り(スライド式:80台、平置き:1台) ※空き状況はお問い合わせください。
駐車場料金
月額400円(別途消費税)
バイク置場
無し
ペット
相談可(小型犬または猫2匹まで、敷金1ヶ月積み増し)
その他諸条件
SOHO不可・事務所不可・楽器相談可
設計・施工
北野建設株式会社 東京本社
竣工
2014年2月
取引形態
媒介
備考
※間取図等の資料と引渡し時の現況が異なる場合は、引渡し時の現況を優先とさせていただきます。
※入居審査の結果、お断りさせていただく場合もございますが、その理由については一切申し上げられません。
※仲介手数料として、月額賃料の1ヶ月分(別途消費税)をお支払いいただきます。
※諸条件その他詳細は、お気兼ねなくお問い合わせください。
お問い合わせ先
株式会社アライバル
住所:東京都中野区中野5-52-15 中野ブロードウェイ10F
電話:0120-216-626
宅建免許:東京都知事(4)第87502号
加盟団体:(公社)東京都宅地建物取引業協会 (公社)全国宅地建物取引業保証協会
PAGE TOP

ディームス麻布狸穴町をご検討のお客様は以下の高級賃貸マンションもご覧になっています。

お問合せは下記のフリーコールからどうぞ

0120-216-626

上記の番号をタップしてお電話ください。
[電話受付時間] 10:00~19:00

※繋がりにくい場合は、
03-5343-6030へお電話ください。

メールでのお問合せはこちら

メールのお問合せは24時間365日受付しています。

 

新宿区・渋谷区を中心とした高級賃貸・タワーマンション情報サイト-アライバル・ラグジュアリースタイル-

株式会社アライバル<媒介> 東京都中野区中野5-52-15 中野ブロードウェイ10F TEL:0120-216-626

宅建免許:東京都知事(4)第87502号 加盟団体:(公社)東京都宅地建物取引業協会 (公社)全国宅地建物取引業保証協会