高級賃貸マンション「デュオフラッツ浅草蔵前」の賃貸募集を開始しました。
4月末日までのご成約に限り、仲介手数料無料・礼金0ヶ月にてご案内致しております。

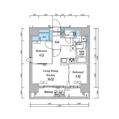
各部屋をタップクリックすると間取り図が表示されます。
最終更新日:2026年4月17日
お問合せは下記のフリーコールからどうぞ
上記の番号をタップしてお電話ください。
[電話受付時間] 10:00~19:00
※繋がりにくい場合は、
03-5343-6030へお電話ください。

メールのお問合せは24時間365日受付しています。


本物件の間取りは1LDK(約30㎡)と2LDK(約45㎡)の2タイプとなっており、主にシングルやDINKS層をターゲットとしました。
タイプによっては、ウォークインクローゼットや便利な可動式収納棚も採用しており、収納スペースも豊富です。
また、機能性の高い水まわりや明るめの色彩でまとめたルームカラーなど、どのタイプも居心地の良い空間を追求しています。



本物件から都営大江戸線「蔵前駅」までは徒歩3分。都内各地へのアクセス環境も良く、利便性の高い立地です。
現地周辺にはスーパーやコンビニなどの利便施設も充実しており、日々のお買い物に困ることはありません。
また、現地からは日本有数の観光地である浅草も徒歩圏内。連日多くの人で賑わいをみせています。
多くの魅力に溢れるこの街と共に、あなたの理想とするマンションライフをお楽しみください。



本物件では、浴室換気乾燥機を備えた清潔感漂うバスルームや、日々の身支度をオシャレに彩る独立洗面台など、
日々の暮らしに欠かせない各種水回りの機能を取り揃えました。
その他にも、来訪者を事前に確認できるTVモニター付インターホンや共用部のオートロックなど、
入居者の暮らしをサポートする充実の設備・仕様が住まいの安全性を高めています。
※設備一覧画像はイメージとなっており、実際の仕様とは異なります。
