高級賃貸マンション「リビオメゾン西麻布」の賃貸募集を開始しました。
5月末日までのご成約に限り、仲介手数料無料・礼金0ヶ月・フリーレント1ヶ月にてご案内致しております。

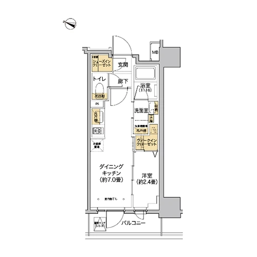
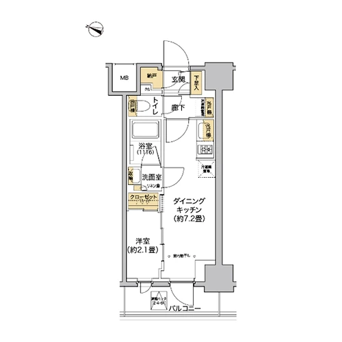
各部屋の枠内をクリックすると間取り図が表示されます。
最終更新日:2026年5月29日
お問合せは下記のフリーコールからどうぞ
上記の番号をタップしてお電話ください。
[電話受付時間] 10:00~19:00
※繋がりにくい場合は、
03-5343-6030へお電話ください。

メールのお問合せは24時間365日受付しています。


リビオメゾン西麻布では、シングル・DINKs層のニーズにお応えするプランをセレクト。
1DKの住戸には、ダイニングとベッドルームの仕切りに利便性の高い引き戸を採用しており、
目的に合わせて開放することで、部屋同士が一体化し、空間が広く感じられます。
さらに、一部住戸にはカウンターキッチンを備えることにより、開放的なリビングを演出。
暮らしやすく居心地の良いプライベート空間が、居住者に安らぎのひとときをもたらすことでしょう。


東京を代表するランドマークのひとつ「六本木ヒルズ」より徒歩数分。
都内有数の高級住宅地としても知られる港区西麻布エリアが、本物件の暮らしの舞台となります。
生活圏内には表参道ヒルズや東京ミッドタウン、国立新美術館など、大規模な商業施設が点在しており、
様々なグルメやショッピングはもちろん、アミューズメント、文化・芸術鑑賞まで幅広く楽しめる魅力的なポジションです。



本物件では、エントランスからお部屋まで2段階のダブルセキュリティラインを採用。
玄関ドアはディンプルキー&ダブルロックとなっており、防犯性能を高めて入居者の安全を確保しています。
また、5階以上の2LDKタイプには、一日を通じて快適な照明環境を確保できるHOMMAスマートホームも取り入れました。
センサーによって、住む人が手間をかけることなく完全自動で照明をコントロール可能となっています。
高品質な先進の設備・仕様がもたらすワンランク上のマンションライフを心ゆくまでお過ごしください。
※設備一覧画像はイメージとなっており、実際の仕様とは異なります。
