高級賃貸マンション「ミレーネ滝野川」の賃貸募集を開始しました。
2月末日までのご成約に限り、仲介手数料無料・礼金0ヶ月(一部住戸)にてご案内致しております。

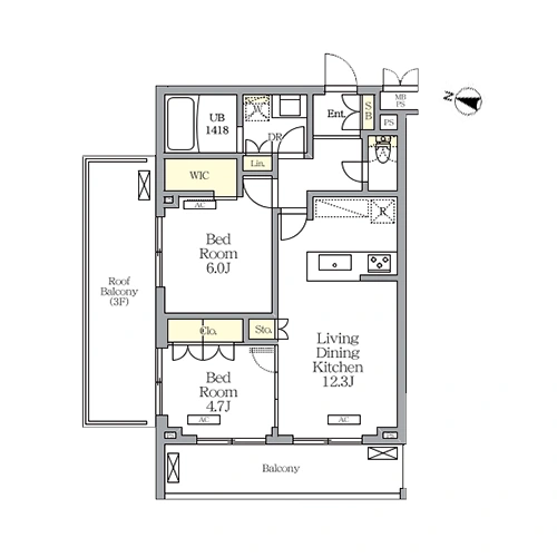
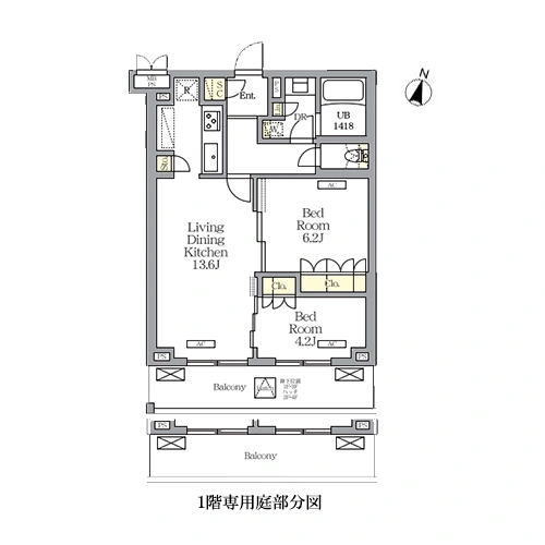
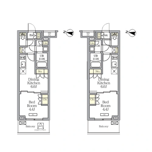
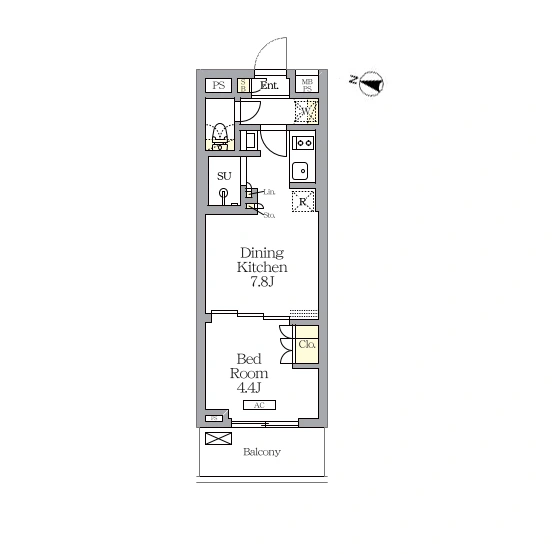
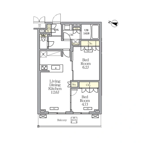
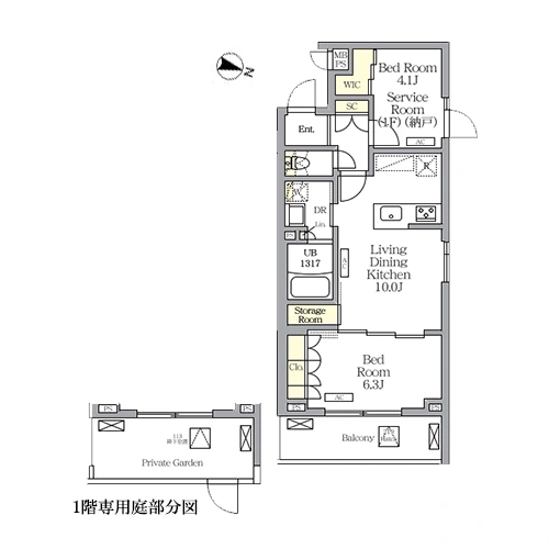
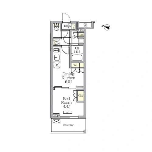
各部屋の枠内をクリックすると間取り図が表示されます。
※賃料の背景色が の住戸は、礼金0ヶ月となります。
※掲載のフロアマップは図面を基に作成したものとなっており、実際とは異なる場合があります。
最終更新日:2026年2月10日
お問合せは下記のフリーコールからどうぞ
上記の番号をタップしてお電話ください。
[電話受付時間] 10:00~19:00
※繋がりにくい場合は、
03-5343-6030へお電話ください。

メールのお問合せは24時間365日受付しています。


間取りは1DKから3LDKまで幅広く採用しており、そのバリエーションは20種類以上。
シングル・DINKs・ファミリーといった多様なライフスタイルにも対応する住戸プランを実現しています。
1DK・1LDKタイプは2部屋をつなげて利用可能なトレンドのプラン。リモートワークの際にも重宝する人気の間取りです。
その他にも、水まわりや収納といった各種設備の高品質な仕上がりとなっており、居心地の良い生活空間をつくりあげました。


都心の利便と下町の温度がほどよく溶け合う街、滝野川。
緑が広がる公園や、静かに佇む神社が日常の中に自然な安らぎを添え、都電が走る路地はどこか懐かしい情景を映し出します。
生活圏には、気取らないグルメや昔ながらの銭湯文化が息づき、商店やスーパーが点在することで、暮らし心地も良好です。
また、「西巣鴨」駅と「西ヶ原四丁目」駅の2駅2路線が利用できるため、大手町や日比谷へも軽快につながります。
落ち着きと利便が共存する滝野川エリアと共に、豊かな都心生活をお過ごしください。



使いやすくお手入れもしやすいシステムキッチン、いつでも温かいお湯に浸かることができる追焚機能付きのバスルームなど、
機能とデザインを兼ね備えた高品質な設備・仕様が、心地よい日常を演出します。
また、共用部に設置された防犯カメラや来訪者を目視できるTVモニター付インターホンなど、セキュリティにも配慮。
充実のラインナップが安心かつ快適なマンションライフをサポートします。
※設備一覧画像はイメージとなっており、実際の仕様とは異なります。
