プラウドフラット亀戸

プラウドフラット亀戸:お問い合わせ  
sp
空室一覧・賃料 sp 間取り図一覧 sp フロアマップ

プラウドフラット亀戸:ルームプラン

sp

プラウドフラット亀戸:ルームプラン:見出し

sp

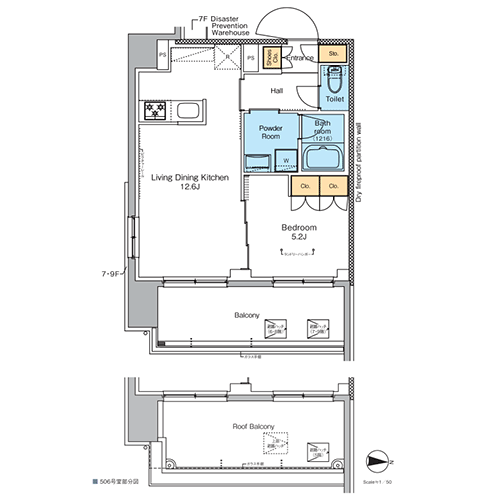
暮らしに新たな価値をもたらす住まいを追求した「プラウドフラット亀戸」の住戸プラン。
コンパクトながら暮らしに必要な機能が凝縮した1Kをはじめ、2室一体利用も可能な1DK・2K、
お洒落なカウンターキッチンと明るい2面採光が魅力的な1LDKなど、全12タイプの間取りをご用意しました。

暮らしやすく心地の良いプライベート空間が、日々の安らぎをより深めます。

sp
sp
pagetop
sp