本サイトは仲介業者である株式会社アライバルが プラウドフラットシリーズの募集情報を掲載しています。
また、プラウドフラットは野村不動産株式会社の登録商標(ブランド)です。
高級賃貸マンション「プラウドフラット錦糸町ウエスト」の賃貸募集を開始しました。
1月末日までのご成約に限り、仲介手数料無料・礼金0ヶ月にてご案内致しております。

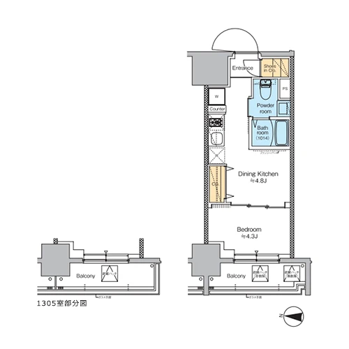
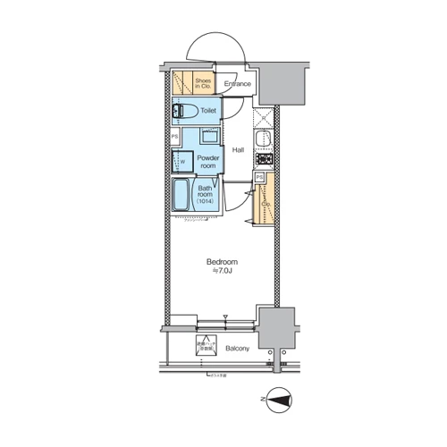
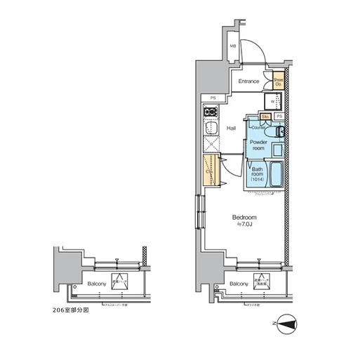
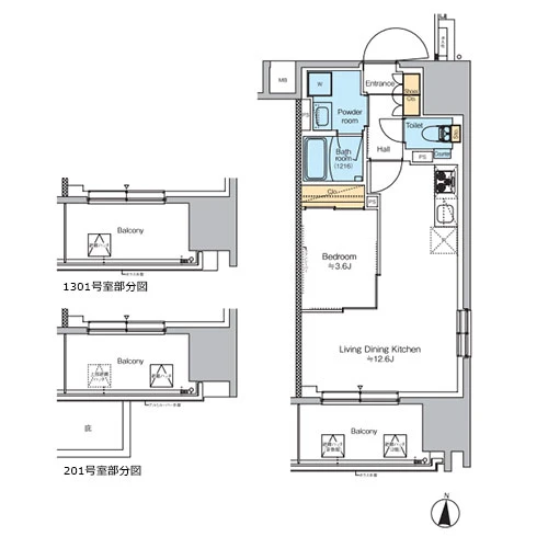
各部屋の枠内をクリックすると間取り図が表示されます。
最終更新日:2026年1月23日
お問合せは下記のフリーコールからどうぞ
上記の番号をタップしてお電話ください。
[電話受付時間] 10:00~19:00
※繋がりにくい場合は、
03-5343-6030へお電話ください。

メールのお問合せは24時間365日受付しています。


本物件では多彩なライフスタイルに対応するため、間取りは1Kから2LDKまで幅広くご用意しました。
各住戸では生活動線に配慮した空間設計や高品質な設備・仕様によって、高い居住性を実現。
優れた生活空間が1日のはじまりを心地良く演出し、豊かな都心生活を演出します。


現地からは最寄りの両国駅をはじめ、3駅5路線が利用可能。都内各地にもスムーズに繋がる魅力的なアクセス環境です。
駅を中心に商業施設も集まっており、なかでも錦糸町駅周辺には「マルイ」や「パルコ」といった大型商業施設が数多く点在。
平日・休日を問わず多くのお買い物客で賑わいをみせており、活気のある街並みが広がっています。
また、「猿江恩賜公園」や「大横川親水公園」といった憩いの自然スポットも充実しており、気分転換に最適です。



本物件では、スマートフォンのアプリや交通系ICカードから鍵の操作が可能な「スマートロック」をはじめ、
Wi-Fi付きの無料インターネットサービス、便利な宅配ボックスなど、充実のラインナップをご用意しました。
さらに、ディンプルキー&ダブルロック仕様の玄関扉やTVモニター付きインターホン、防犯カメラなど、
本物件ではセキュリティ面も充実しており、住まいの安全性も高めています。
※設備一覧画像はイメージとなっており、実際の仕様とは異なります。

株式会社アライバル<仲介> 東京都中野区中野5-52-15 中野ブロードウェイ10F TEL:0120-216-626
宅建免許:東京都知事(4)第87502号 加盟団体:(公社)東京都宅地建物取引業協会 (公社)全国宅地建物取引業保証協会
Copyright © 2009 ARRIVAL.CO.LTD.All Rights Reserved.