本サイトは仲介業者である株式会社アライバルが プラウドフラットシリーズの募集情報を掲載しています。
また、プラウドフラットは野村不動産株式会社の登録商標(ブランド)です。
高級賃貸マンション「プラウドフラット三越前イースト」の賃貸募集を開始しました。
12月末日までのご成約に限り、仲介手数料無料・礼金0ヶ月にてご案内致しております。

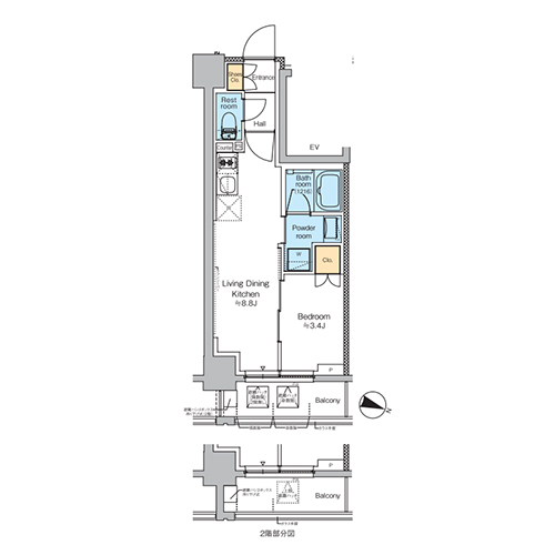
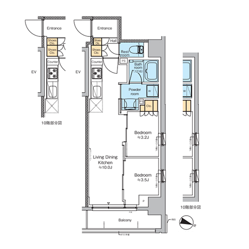
各部屋の枠内をクリックすると間取り図が表示されます。
最終更新日:2025年12月5日
お問合せは下記のフリーコールからどうぞ
上記の番号をタップしてお電話ください。
[電話受付時間] 10:00~19:00
※繋がりにくい場合は、
03-5343-6030へお電話ください。

メールのお問合せは24時間365日受付しています。


本物件の間取りは約30㎡~約49㎡の1LDK・2LDKを採用し、合計4タイプのお部屋をご用意しました。
都市生活をアクティブに楽しむシングル層・DINKS層をターゲットとしています。
リビングとベッドルームの仕切りには空間の可変性を備えた引き戸を採用し、目的に合わせてお部屋をお使いいただけます。
また、要所に収納スペースも設けられており、生活しやすい環境を整えました。
暮らしに優しくフィットする住空間が、心地の良いひとときをもたらします。


本物件から最寄り駅までは徒歩6分。大手町や東京駅まで1駅となっており、機動力を誇る7駅7路線アクセスが魅力です。
また、現地周辺には複数のスーパーやコンビニも点在しており、「日本橋三越本店」も徒歩圏内。
デパ地下グルメを手軽に楽しむことができます。
その他にも、四季折々の自然を楽しむことができる「浜町公園」、気分転換にお散歩するのにぴったりな「隅田川」も徒歩圏内。
利便性を兼ね備えた満ち足りた日常を支える住環境と共に、想い描いた理想の都心生活をお過ごしください。



本物件では、先進的な設備・仕様を採用し、入居者の快適で豊かな都心生活をサポートしています。
例えば、共用部のオートロックにはノンタッチキーシステムを採用。
また、玄関扉にはスマートフォンで解錠・施錠ができるスマートロックを取り入れ、暮らしの利便性を高めています。
さらに、留守中でも荷物の受け取りが可能な宅配ボックスや、天候を気にせず洗濯物が干せる浴室換気乾燥機など、
豊富なラインナップがより高品質な日常を創り出すことでしょう。
※設備一覧画像はイメージとなっており、実際の仕様とは異なります。

株式会社アライバル<仲介> 東京都中野区中野5-52-15 中野ブロードウェイ10F TEL:0120-216-626
宅建免許:東京都知事(4)第87502号 加盟団体:(公社)東京都宅地建物取引業協会 (公社)全国宅地建物取引業保証協会
Copyright © 2009 ARRIVAL.CO.LTD.All Rights Reserved.