プラウドフラット門前仲町Ⅴ|ルームプラン


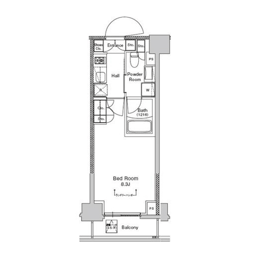
プラウドフラット門前仲町Ⅴ|間取図

図面と現況が異なる場合は、現況を優先します。



高級賃貸マンション|株式会社アライバル