
開放感のあるリビング・ダイングや高品質な水廻り、豊富な収納スペースなど、ワンランク上の住空間を実現した本物件。
質の高い素材と巧みなカラーリングによって構成された室内は、高級感があり落ち着いた雰囲気を漂わせています。
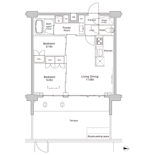
間取りは1K・1LDK・2LDKとなっており、そのバリエーションは約40種類。シングルからDINKS・ファミリー層まで、幅広いニーズに対応しました。
安らぎのプライベートタイムはもちろん、大切なご家族との団欒もより一層深まる、「プラウドフラット中野」のこだわりの住戸プランです。
※部屋の設備・仕様や建具、バルコニーの仕様は、住戸によって多少異なります。

