本サイトは仲介業者である株式会社アライバルが プラウドフラットシリーズの募集情報を掲載しています。
また、プラウドフラットは野村不動産株式会社の登録商標(ブランド)です。
高級賃貸マンション「プラウドフラット日本橋馬喰町」の賃貸募集を開始しました。
12月末日までのご成約に限り、仲介手数料無料・礼金0ヶ月にてご案内致しております。

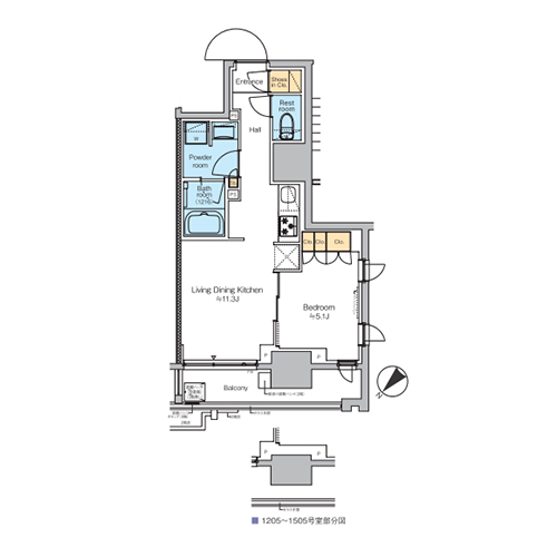
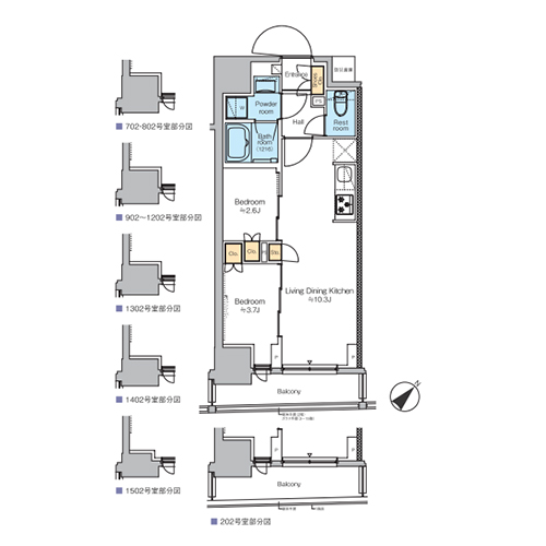
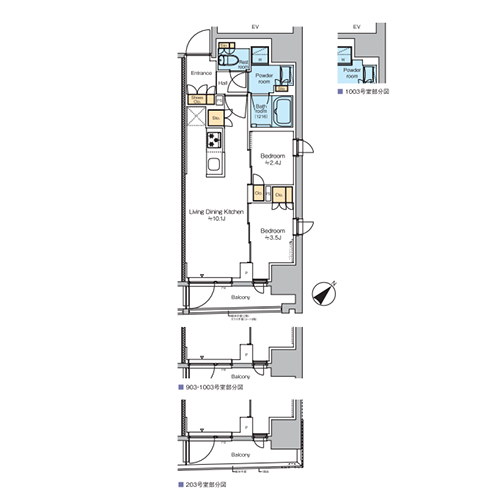
各部屋の枠内をクリックすると間取り図が表示されます。
最終更新日:2025年12月5日
お問合せは下記のフリーコールからどうぞ
上記の番号をタップしてお電話ください。
[電話受付時間] 10:00~19:00
※繋がりにくい場合は、
03-5343-6030へお電話ください。

メールのお問合せは24時間365日受付しています。


本物件の間取りは、1R・1LDK・2LDKをご用意。2LDKを中心とした合計7タイプのお部屋をご用意しました。
広さは約27㎡~52㎡となっており、シングル層からファミリー層まで多様なニーズに応えるプランとなっています。
また、ベッドルームには、必要に合わせて空間をフレキシブルに使える引き戸を採用。
要所に収納スペースも確保されており、暮らしやすい生活空間を実現しています。
質の高いプライベート空間が日々の安らぎを深め、心地良い暮らしを育むことでしょう。


本物件から徒歩1分の「馬喰町駅」をはじめ、5駅5路線の利用が可能となっており、都内各地へスムーズに繋がります。
近隣にはスーパーやドラッグストア、銀行、郵便局など暮らしに欠かせない生活利便施設が勢揃い。
また、少し足を伸ばすと上質なグルメやショップ、映画館が揃う複合施設「COREDO室町1」も徒歩圏内です。
さらに、「浜町公園」や「隅田川テラス」といった自然の中でリラックスできるスポットも現地至近。
都市の利便性と自然の安らぎを享受できるこの街で、充実したマンションライフをお過ごしください。



都心で暮らす入居者が快適なマンションライフを送れるよう、本物件では充実した設備・仕様をご用意しました。
セキュリティ面では、スマートフォンで玄関ドアの解錠・施錠ができるスマートロックを採用。
扉が閉まると自動的に施錠するため、暮らしの利便性を高めます。
また、24時間対応の荷物の受け取りはもちろん多彩な機能を備えた宅配ボックスや、大型メール便にも対応したメールボックスも設置。
充実のラインナップが、ワンランク上の日常をデザインすることでしょう。
※設備一覧画像はイメージとなっており、実際の仕様とは異なります。

株式会社アライバル<仲介> 東京都中野区中野5-52-15 中野ブロードウェイ10F TEL:0120-216-626
宅建免許:東京都知事(4)第87502号 加盟団体:(公社)東京都宅地建物取引業協会 (公社)全国宅地建物取引業保証協会
Copyright © 2009 ARRIVAL.CO.LTD.All Rights Reserved.