高級賃貸マンション:ロイヤルパークス赤羽ノースのロゴ
高級賃貸マンション:ロイヤルパークス赤羽ノースのお問い合わせ窓口
高級賃貸マンション:ロイヤルパークス赤羽ノースのロゴ
高級賃貸マンション:ロイヤルパークス赤羽ノース 高級賃貸マンション:ロイヤルパークス赤羽ノース

-4月のキャンペーン情報-

仲介手数料無料
キャンペーン実施中

4月末日までにご成約のお客様は
礼金0・仲介手数料無料キャンペーン中!
さらにフリーレント付きにてご案内致します!

※キャンペーンは予告なく変更終了する場合があります。
※館内移動につきましては対象外となります。

NEWS

高級賃貸マンション「ロイヤルパークス赤羽ノース」の賃貸募集を開始しました。

4月末日までのご成約に限り、仲介手数料無料・礼金0ヶ月・フリーレント付きにてご案内致しております。

INFORMATION

住所:
東京都北区神谷3丁目15番5号(住居表示)
交通:
東京メトロ南北線「志茂」駅 徒歩8分
JR埼京線他「赤羽」駅 徒歩15分
2026年4月14日:
空室一覧を更新致しました。 空室一覧を更新致しました。

ROOM LIST
-空室一覧-

各部屋の枠内をクリックすると間取り図が表示されます。

共益費
1DK・1LDKタイプ:月額15,000円
2DK・2LDKタイプ:月額20,000円
3LDK・4LDKタイプ:月額30,000円

諸条件
敷金:無し
礼金:無し
仲介手数料:無料
フリーレント:1ヶ月

※賃料の背景色が       の住戸は、フリーレント2ヶ月となります。

横にスクロールできます
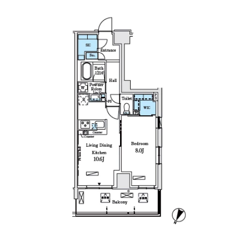
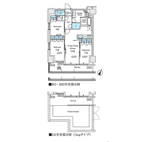
10F
1013
AA-type
3LDK
70.00㎡
335,000円
1012
BA'-type
2LDK
65.50㎡
320,000円
1011
BA-type
2LDK
65.50㎡
320,000円
1010
BA'-type
3LDK
73.50㎡
[非募集]
1009
CA-type
3LDK
65.10㎡
[非募集]
1008
CA-type
3LDK
65.10㎡
[非募集]
1007
CA-type
3LDK
65.10㎡
[非募集]
1006
CA-type
3LDK
65.10㎡
[非募集]
1005
CB'-type
3LDK
65.10㎡
[非募集]
1004
CB'-type
3LDK
65.10㎡
[非募集]
1003
CB'-type
3LDK
65.10㎡
[申込み]
1002
CB'-type
2LDK
55.10㎡
[非募集]
1001
AB'-type
3LDK
78.75㎡
[非募集]
1038
AB-type
3LDK
70.00㎡
[非募集]
1037
BB-type
3LDK
65.50㎡
[非募集]
1036
BB-type
3LDK
65.50㎡
[非募集]
1035
BB'-type
3LDK
65.50㎡
[非募集]
1034
BB-type
3LDK
65.50㎡
[非募集]
1033
D-type
4LDK
83.00㎡
410,000円
9F
913
AA-type
3LDK
70.00㎡
[成約]
912
BA'-type
2LDK
65.50㎡
[成約]
911
BA-type
2LDK
65.50㎡
[成約]
910
BA'-type
2LDK
55.80㎡
[非募集]
909
CA-type
2LDK
55.80㎡
[非募集]
908
CA-type
2LDK
55.80㎡
[非募集]
907
CA-type
2LDK
55.80㎡
[非募集]
906
CA-type
2LDK
55.80㎡
[申込み]
905
CB'-type
2LDK
55.80㎡
[非募集]
904
CB'-type
2LDK
55.80㎡
[非募集]
903
CB'-type
2LDK
55.80㎡
[成約]
902
CB'-type
2LDK
55.80㎡
[申込み]
901
AB'-type
3LDK
70.00㎡
335,000円
938
AB-type
3LDK
70.00㎡
335,000円
937
BB-type
3LDK
65.50㎡
310,000円
936
BB-type
3LDK
65.50㎡
310,000円
935
BB'-type
3LDK
65.50㎡
[非募集]
934
BB-type
3LDK
65.50㎡
[非募集]
933
D-type
4LDK
83.00㎡
[成約]
8F
813
AA-type
3LDK
70.00㎡
[非募集]
812
BA'-type
2LDK
65.50㎡
[非募集]
811
BA-type
2LDK
65.50㎡
[非募集]
810
BA'-type
2LDK
65.50㎡
[非募集]
809
CA-type
2LDK
55.80㎡
[非募集]
808
CA-type
2LDK
55.80㎡
[非募集]
807
CA-type
2LDK
55.80㎡
[非募集]
806
CA-type
2LDK
55.80㎡
[非募集]
805
CB'-type
2LDK
55.80㎡
[非募集]
804
CB'-type
2LDK
55.80㎡
[非募集]
803
CB'-type
2LDK
55.80㎡
[非募集]
802
CB'-type
2LDK
55.80㎡
[非募集]
801
AB'-type
3LDK
70.00㎡
[非募集]
856
AB-type
3LDK
70.00㎡
[非募集]
855
BB-type
3LDK
65.50㎡
[非募集]
854
BB-type
3LDK
65.50㎡
[非募集]
853
BB'-type
3LDK
65.50㎡
[非募集]
852
BB-type
3LDK
65.50㎡
[非募集]
851
D-type
4LDK
83.00㎡
[非募集]
7F
713
AA-type
3LDK
70.00㎡
[非募集]
712
BA'-type
2LDK
65.50㎡
[非募集]
711
BA-type
2LDK
65.50㎡
[非募集]
710
BA'-type
2LDK
65.50㎡
[非募集]
709
CA-type
2LDK
55.80㎡
[非募集]
708
CA-type
2LDK
55.80㎡
[非募集]
707
CA-type
2LDK
55.80㎡
[非募集]
706
CA-type
2LDK
55.80㎡
[非募集]
705
CB'-type
2LDK
55.80㎡
[非募集]
704
CB'-type
2LDK
55.80㎡
[非募集]
703
CB'-type
2LDK
55.80㎡
[非募集]
702
CB'-type
2LDK
55.80㎡
[非募集]
701
AB'-type
3LDK
70.00㎡
[非募集]
756
AB-type
3LDK
70.00㎡
[非募集]
755
BB-type
3LDK
65.50㎡
[非募集]
754
BB-type
3LDK
65.50㎡
[非募集]
753
BB'-type
3LDK
65.50㎡
[非募集]
752
BB-type
3LDK
65.50㎡
[非募集]
751
D-type
4LDK
83.00㎡
[非募集]
6F
613
AA-type
3LDK
70.00㎡
[非募集]
612
BA'-type
2LDK
65.50㎡
[非募集]
611
BA-type
2LDK
65.50㎡
[非募集]
610
BA'-type
2LDK
65.50㎡
[非募集]
609
CA-type
2LDK
55.80㎡
[非募集]
608
CA-type
2LDK
55.80㎡
[非募集]
607
CA-type
2LDK
55.80㎡
[非募集]
606
CA-type
2LDK
55.80㎡
[非募集]
605
CB'-type
2LDK
55.80㎡
[非募集]
604
CB'-type
2LDK
55.80㎡
[非募集]
603
CB'-type
2LDK
55.80㎡
[非募集]
602
CB'-type
2LDK
55.80㎡
[非募集]
601
AB'-type
3LDK
70.00㎡
[非募集]
656
AB-type
3LDK
70.00㎡
[非募集]
655
BB-type
3LDK
65.50㎡
[非募集]
654
BB-type
3LDK
65.50㎡
[非募集]
653
BB'-type
3LDK
65.50㎡
[非募集]
652
BB-type
3LDK
65.50㎡
[非募集]
651
D-type
4LDK
83.00㎡
[非募集]
5F
513
AA-type
3LDK
70.00㎡
331,000円
512
BA'-type
2LDK
65.50㎡
316,000円
511
BA-type
2LDK
65.50㎡
316,000円
510
BA'-type
2LDK
65.50㎡
[非募集]
509
CA-type
2LDK
55.80㎡
[非募集]
508
CA-type
2LDK
55.80㎡
[非募集]
507
CA-type
2LDK
55.80㎡
[非募集]
506
CA-type
2LDK
55.80㎡
265,000円
505
CB'-type
2LDK
55.80㎡
[非募集]
504
CB'-type
2LDK
55.80㎡
[非募集]
503
CB'-type
2LDK
55.80㎡
[成約]
502
CB'-type
2LDK
55.80㎡
[成約]
501
AB'-type
3LDK
70.00㎡
331,000円
556
AB-type
3LDK
70.00㎡
331,000円
555
BB-type
3LDK
65.50㎡
298,000円
554
BB-type
3LDK
65.50㎡
306,000円
553
BB'-type
3LDK
65.50㎡
[非募集]
552
BB-type
3LDK
65.50㎡
[非募集]
551
D-type
4LDK
83.00㎡
406,000円
4F
413
AA-type
3LDK
70.00㎡
330,000円
412
BA'-type
2LDK
65.50㎡
315,000円
411
BA-type
2LDK
65.50㎡
[申込み]
410
BA'-type
2LDK
65.50㎡
[非募集]
409
CA-type
2LDK
55.80㎡
[非募集]
408
CA-type
2LDK
55.80㎡
[非募集]
407
CA-type
2LDK
55.80㎡
[非募集]
406
CA-type
2LDK
55.80㎡
264,000円
405
CB'-type
2LDK
55.80㎡
[非募集]
404
CB'-type
2LDK
55.80㎡
[非募集]
403
CB'-type
2LDK
55.80㎡
264,000円
402
CB'-type
2LDK
55.80㎡
264,000円
401
AB'-type
3LDK
70.00㎡
330,000円
456
AB-type
3LDK
70.00㎡
330,000円
455
BB-type
3LDK
65.50㎡
[成約]
454
BB-type
3LDK
65.50㎡
305,000円
453
BB'-type
3LDK
65.50㎡
[非募集]
452
BB-type
3LDK
65.50㎡
[非募集]
451
D-type
4LDK
83.00㎡
405,000円
3F
313
AA-type
3LDK
70.00㎡
329,000円
312
BA'-type
2LDK
65.50㎡
314,000円
311
BA-type
2LDK
65.50㎡
314,000円
310
BA'-type
2LDK
65.50㎡
[非募集]
309
CA-type
2LDK
55.80㎡
[非募集]
308
CA-type
2LDK
55.80㎡
[非募集]
307
CA-type
2LDK
55.80㎡
[非募集]
306
CA-type
2LDK
55.80㎡
[申込み]
305
CB'-type
2LDK
55.80㎡
[非募集]
304
CB'-type
2LDK
55.80㎡
[非募集]
303
CB'-type
2LDK
55.80㎡
[成約]
302
CB'-type
2LDK
55.80㎡
[成約]
301
AB'-type
3LDK
70.00㎡
329,000円
356
AB-type
3LDK
70.00㎡
329,000円
355
BB-type
3LDK
65.50㎡
292,000円
354
BB-type
3LDK
65.50㎡
304,000円
353
BB'-type
3LDK
65.50㎡
[非募集]
352
BB-type
3LDK
65.50㎡
[非募集]
351
D-type
4LDK
83.00㎡
404,000円
2F
213
AA-type
3LDK
70.00㎡
[非募集]
212
BA'-type
2LDK
65.50㎡
[非募集]
211
BA-type
2LDK
65.50㎡
[非募集]
210
BA'-type
2LDK
65.50㎡
[非募集]
209
CA-type
2LDK
55.80㎡
[非募集]
208
CA-type
2LDK
55.80㎡
[非募集]
207
CA-type
2LDK
55.80㎡
[非募集]
206
CA-type
2LDK
55.80㎡
[非募集]
205
CB'-type
2LDK
55.80㎡
[非募集]
204
CB'-type
2LDK
55.80㎡
[非募集]
203
CB'-type
2LDK
55.80㎡
[非募集]
202
CB'-type
2LDK
55.80㎡
[非募集]
201
AB'-type
3LDK
70.00㎡
[非募集]
249
AB-type
3LDK
70.00㎡
[非募集]
248
BB'-type
3LDK
65.50㎡
[非募集]
247
BB-type
3LDK
65.50㎡
[非募集]
246
BB'-type
3LDK
65.50㎡
[非募集]
エントランス
1F
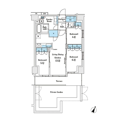
113
AAG-type
3LDK
70.00㎡
[成約]
112
BA'G-type
2LDK
65.50㎡
311,000円
111
BAG-type
2LDK
65.50㎡
311,000円
110
BA'G-type
2LDK
65.50㎡
311,000円
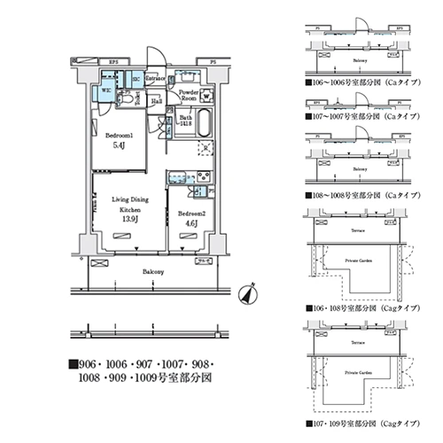
109
CAG-type
2LDK
55.80㎡
260,000円
108
CAG-type
2LDK
55.80㎡
260,000円
107
CAG-type
2LDK
55.80㎡
260,000円
106
CAG-type
2LDK
55.80㎡
260,000円
105
CB'G-type
2LDK
55.80㎡
260,000円
104
CB'G-type
2LDK
55.80㎡
260,000円
103
CB'G-type
2LDK
55.80㎡
260,000円
102
CB'G-type
2LDK
55.80㎡
260,000円
101
AB'G-type
3LDK
70.00㎡
330,000円
ゲストルーム パーティー
ルーム
キッズルーム ラウンジ エントランス
  南向き
横にスクロールできます

最終更新日:2026年4月14日

横にスクロールできます
10F
1014
ER-type
4LDK
90.11㎡
[非募集]
1015
FR-type
3LDK
73.50㎡
[非募集]
1016
FR-type
3LDK
73.50㎡
[非募集]
1017
GR-type
3LDK
65.10㎡
[非募集]
1018
GR-type
3LDK
65.10㎡
[非募集]
1019
GR-type
3LDK
65.10㎡
[非募集]
1020
GR-type
3LDK
65.10㎡
[非募集]
1021
GR-type
3LDK
65.10㎡
[非募集]
1022
GR-type
3LDK
65.10㎡
[非募集]
1023
GR'-type
3LDK
65.10㎡
[非募集]
1024
H-type
2LDK
55.10㎡
265,000円
1025
IR-type
3LDK
78.75㎡
[非募集]
1026
IR'-type
3LDK
78.75㎡
380,000円
1027
FR'-type
3LDK
73.50㎡
[非募集]
1028
FR'-type
3LDK
73.50㎡
[非募集]
1029
FR'-type
3LDK
73.50㎡
[非募集]
1030
FR'-type
3LDK
73.50㎡
[非募集]
1031
FR'-type
3LDK
73.50㎡
[非募集]
1032
IR'-type
3LDK
78.75㎡
[非募集]
9F
914
ER-type
4LDK
90.11㎡
[申込み]
915
FR-type
3LDK
73.50㎡
350,000円
916
FR-type
3LDK
73.50㎡
[非募集]
917
GR-type
3LDK
65.10㎡
[非募集]
918
GR-type
3LDK
65.10㎡
[非募集]
919
GR-type
3LDK
65.10㎡
[非募集]
920
GR-type
3LDK
65.10㎡
[非募集]
921
GR-type
3LDK
65.10㎡
[非募集]
922
GR-type
3LDK
65.10㎡
305,000円
923
GR'-type
3LDK
65.10㎡
305,000円
924
H-type
2LDK
55.10㎡
[成約]
925
IR-type
3LDK
78.75㎡
380,000円
926
IR'-type
3LDK
78.75㎡
[成約]
927
FR'-type
3LDK
73.50㎡
350,000円
928
FR'-type
3LDK
73.50㎡
[非募集]
929
FR'-type
3LDK
73.50㎡
[非募集]
930
FR'-type
3LDK
73.50㎡
[非募集]
931
FR'-type
3LDK
73.50㎡
[非募集]
932
IR'-type
3LDK
78.75㎡
[非募集]
8F
814
E-type
1LDK
49.16㎡
[非募集]
815
F'-type
1LDK
40.95㎡
[非募集]
816
F-type
1LDK
40.95㎡
[非募集]
817
GB'-type
1LDK
32.55㎡
[非募集]
818
F-type
1LDK
40.95㎡
[非募集]
819
GB'-type
1LDK
32.55㎡
[非募集]
820
GA-type
1DK
32.55㎡
[非募集]
821
GA'-type
1DK
32.55㎡
[非募集]
822
GA-type
1DK
32.55㎡
[非募集]
823
GA'-type
1DK
32.55㎡
[非募集]
824
GA-type
1DK
32.55㎡
[非募集]
825
GA'-type
1DK
32.55㎡
[非募集]
826
GA-type
1DK
32.55㎡
[非募集]
827
GA'-type
1DK
32.55㎡
[非募集]
828
GA-type
1DK
32.55㎡
[非募集]
829
GA'-type
1DK
32.55㎡
[非募集]
830
GA-type
1DK
32.55㎡
[非募集]
831
GA'-type
1DK
32.55㎡
[非募集]
832
GA-type
1DK
32.55㎡
[非募集]
833
GA'-type
1DK
32.55㎡
[非募集]
834
H-type
2LDK
55.10㎡
[非募集]
835
GA-type
1DK
32.55㎡
[非募集]
836
I-type
2DK
46.20㎡
[非募集]
837
I'-type
2DK
46.20㎡
[非募集]
838
GA'-type
1DK
32.55㎡
[非募集]
839
GB-type
1LDK
32.55㎡
[非募集]
840
F'-type
1LDK
40.95㎡
[非募集]
841
GB-type
1LDK
32.55㎡
[非募集]
842
F'-type
1LDK
40.95㎡
[非募集]
843
GB-type
1LDK
32.55㎡
[非募集]
844
F'-type
1LDK
40.95㎡
[非募集]
845
GB-type
1LDK
32.55㎡
[非募集]
846
F'-type
1LDK
40.95㎡
[非募集]
847
GB-type
1LDK
32.55㎡
[非募集]
848
F'-type
1LDK
40.95㎡
[非募集]
849
GA-type
1DK
32.55㎡
[非募集]
850
I-type
2DK
46.20㎡
[非募集]
7F
714
E-type
1LDK
49.16㎡
[非募集]
715
F'-type
1LDK
40.95㎡
[非募集]
716
F-type
1LDK
40.95㎡
[非募集]
717
GB'-type
1LDK
32.55㎡
[非募集]
718
F-type
1LDK
40.95㎡
[非募集]
719
GB'-type
1LDK
32.55㎡
[非募集]
720
GA-type
1DK
32.55㎡
[非募集]
721
GA'-type
1DK
32.55㎡
[非募集]
722
GA-type
1DK
32.55㎡
[非募集]
723
GA'-type
1DK
32.55㎡
[非募集]
724
GA-type
1DK
32.55㎡
[非募集]
725
GA'-type
1DK
32.55㎡
[非募集]
726
GA-type
1DK
32.55㎡
[非募集]
727
GA'-type
1DK
32.55㎡
[非募集]
728
GA-type
1DK
32.55㎡
[非募集]
729
GA'-type
1DK
32.55㎡
[非募集]
730
GA-type
1DK
32.55㎡
[非募集]
731
GA'-type
1DK
32.55㎡
[非募集]
732
GA-type
1DK
32.55㎡
[非募集]
733
GA'-type
1DK
32.55㎡
[非募集]
734
H-type
2LDK
55.10㎡
[非募集]
735
GA-type
1DK
32.55㎡
[非募集]
736
I-type
2DK
46.20㎡
[非募集]
737
I'-type
2DK
46.20㎡
[非募集]
738
GA'-type
1DK
32.55㎡
[非募集]
739
GB-type
1LDK
32.55㎡
[非募集]
740
F'-type
1LDK
40.95㎡
[非募集]
741
GB-type
1LDK
32.55㎡
[非募集]
742
F'-type
1LDK
40.95㎡
[非募集]
743
GB-type
1LDK
32.55㎡
[非募集]
744
F'-type
1LDK
40.95㎡
[非募集]
745
GB-type
1LDK
32.55㎡
[非募集]
746
F'-type
1LDK
40.95㎡
[非募集]
747
GB-type
1LDK
32.55㎡
[非募集]
748
F'-type
1LDK
40.95㎡
[非募集]
749
GA-type
1DK
32.55㎡
[非募集]
750
I-type
2DK
46.20㎡
[非募集]
6F
614
E-type
1LDK
49.16㎡
[非募集]
615
F'-type
1LDK
40.95㎡
[非募集]
616
F-type
1LDK
40.95㎡
[非募集]
617
GB'-type
1LDK
32.55㎡
[非募集]
618
F-type
1LDK
40.95㎡
[非募集]
619
GB'-type
1LDK
32.55㎡
[非募集]
620
GA-type
1DK
32.55㎡
[非募集]
621
GA'-type
1DK
32.55㎡
[非募集]
622
GA-type
1DK
32.55㎡
[非募集]
623
GA'-type
1DK
32.55㎡
[非募集]
624
GA-type
1DK
32.55㎡
[非募集]
625
GA'-type
1DK
32.55㎡
[非募集]
626
GA-type
1DK
32.55㎡
[非募集]
627
GA'-type
1DK
32.55㎡
[非募集]
628
GA-type
1DK
32.55㎡
[非募集]
629
GA'-type
1DK
32.55㎡
[非募集]
630
GA-type
1DK
32.55㎡
[非募集]
631
GA'-type
1DK
32.55㎡
[非募集]
632
GA-type
1DK
32.55㎡
[非募集]
633
GA'-type
1DK
32.55㎡
[非募集]
634
H-type
2LDK
55.10㎡
[非募集]
635
GA-type
1DK
32.55㎡
[非募集]
636
I-type
2DK
46.20㎡
[非募集]
637
I'-type
2DK
46.20㎡
[非募集]
638
GA'-type
1DK
32.55㎡
[非募集]
639
GB-type
1LDK
32.55㎡
[非募集]
640
F'-type
1LDK
40.95㎡
[非募集]
641
GB-type
1LDK
32.55㎡
[非募集]
642
F'-type
1LDK
40.95㎡
[非募集]
643
GB-type
1LDK
32.55㎡
[非募集]
644
F'-type
1LDK
40.95㎡
[非募集]
645
GB-type
1LDK
32.55㎡
[非募集]
646
F'-type
1LDK
40.95㎡
[非募集]
647
GB-type
1LDK
32.55㎡
[非募集]
648
F'-type
1LDK
40.95㎡
[非募集]
649
GA-type
1DK
32.55㎡
[非募集]
650
I-type
2DK
46.20㎡
[非募集]
5F
514
E-type
1LDK
49.16㎡
242,000円
515
F'-type
1LDK
40.95㎡
[成約]
516
F-type
1LDK
40.95㎡
[成約]
517
GB'-type
1LDK
32.55㎡
[成約]
518
F-type
1LDK
40.95㎡
197,000円
519
GB'-type
1LDK
32.55㎡
[成約]
520
GA-type
1DK
32.55㎡
[成約]
521
GA'-type
1DK
32.55㎡
[成約]
522
GA-type
1DK
32.55㎡
[成約]
523
GA'-type
1DK
32.55㎡
[非募集]
524
GA-type
1DK
32.55㎡
152,000円
525
GA'-type
1DK
32.55㎡
152,000円
526
GA-type
1DK
32.55㎡
152,000円
527
GA'-type
1DK
32.55㎡
152,000円
528
GA-type
1DK
32.55㎡
[成約]
529
GA'-type
1DK
32.55㎡
152,000円
530
GA-type
1DK
32.55㎡
152,000円
531
GA'-type
1DK
32.55㎡
[成約]
532
GA-type
1DK
32.55㎡
152,000円
533
GA'-type
1DK
32.55㎡
152,000円
534
H-type
2LDK
55.10㎡
[成約]
535
GA-type
1DK
32.55㎡
[成約]
536
I-type
2DK
46.20㎡
222,000円
537
I'-type
2DK
46.20㎡
222,000円
538
GA'-type
1DK
32.55㎡
[成約]
539
GB-type
1LDK
32.55㎡
[成約]
540
F'-type
1LDK
40.95㎡
197,000円
541
GB-type
1LDK
32.55㎡
154,000円
542
F'-type
1LDK
40.95㎡
197,000円
543
GB-type
1LDK
32.55㎡
154,000円
544
F'-type
1LDK
40.95㎡
197,000円
545
GB-type
1LDK
32.55㎡
154,000円
546
F'-type
1LDK
40.95㎡
197,000円
547
GB-type
1LDK
32.55㎡
[成約]
548
F'-type
1LDK
40.95㎡
197,000円
549
GA-type
1DK
32.55㎡
[非募集]
550
I-type
2DK
46.20㎡
[非募集]
4F
414
E-type
1LDK
49.16㎡
241,000円
415
F'-type
1LDK
40.95㎡
196,000円
416
F-type
1LDK
40.95㎡
[成約]
417
GB'-type
1LDK
32.55㎡
[成約]
418
F-type
1LDK
40.95㎡
196,000円
419
GB'-type
1LDK
32.55㎡
153,000円
420
GA-type
1DK
32.55㎡
151,000円
421
GA'-type
1DK
32.55㎡
151,000円
422
GA-type
1DK
32.55㎡
[成約]
423
GA'-type
1DK
32.55㎡
151,000円
424
GA-type
1DK
32.55㎡
151,000円
425
GA'-type
1DK
32.55㎡
151,000円
426
GA-type
1DK
32.55㎡
151,000円
427
GA'-type
1DK
32.55㎡
151,000円
428
GA-type
1DK
32.55㎡
151,000円
429
GA'-type
1DK
32.55㎡
151,000円
430
GA-type
1DK
32.55㎡
151,000円
431
GA'-type
1DK
32.55㎡
151,000円
432
GA-type
1DK
32.55㎡
151,000円
433
GA'-type
1DK
32.55㎡
151,000円
434
H-type
2LDK
55.10㎡
259,000円
435
GA-type
1DK
32.55㎡
[成約]
436
I-type
2DK
46.20㎡
221,000円
437
I'-type
2DK
46.20㎡
221,000円
438
GA'-type
1DK
32.55㎡
[成約]
439
GB-type
1LDK
32.55㎡
153,000円
440
F'-type
1LDK
40.95㎡
196,000円
441
GB-type
1LDK
32.55㎡
[成約]
442
F'-type
1LDK
40.95㎡
196,000円
443
GB-type
1LDK
32.55㎡
153,000円
444
F'-type
1LDK
40.95㎡
196,000円
445
GB-type
1LDK
32.55㎡
153,000円
446
F'-type
1LDK
40.95㎡
196,000円
447
GB-type
1LDK
32.55㎡
153,000円
448
F'-type
1LDK
40.95㎡
196,000円
449
GA-type
1DK
32.55㎡
[非募集]
450
I-type
2DK
46.20㎡
[非募集]
3F
314
E-type
1LDK
49.16㎡
[申込み]
315
F'-type
1LDK
40.95㎡
195,000円
316
F-type
1LDK
40.95㎡
195,000円
317
GB'-type
1LDK
32.55㎡
[成約]
318
F-type
1LDK
40.95㎡
195,000円
319
GB'-type
1LDK
32.55㎡
[成約]
320
GA-type
1DK
32.55㎡
[成約]
321
GA'-type
1DK
32.55㎡
[成約]
322
GA-type
1DK
32.55㎡
[成約]
323
GA'-type
1DK
32.55㎡
[成約]
324
GA-type
1DK
32.55㎡
150,000円
325
GA'-type
1DK
32.55㎡
150,000円
326
GA-type
1DK
32.55㎡
[成約]
327
GA'-type
1DK
32.55㎡
150,000円
328
GA-type
1DK
32.55㎡
150,000円
329
GA'-type
1DK
32.55㎡
150,000円
330
GA-type
1DK
32.55㎡
150,000円
331
GA'-type
1DK
32.55㎡
[成約]
332
GA-type
1DK
32.55㎡
150,000円
333
GA'-type
1DK
32.55㎡
150,000円
334
H-type
2LDK
55.10㎡
258,000円
335
GA-type
1DK
32.55㎡
[成約]
336
I-type
2DK
46.20㎡
220,000円
337
I'-type
2DK
46.20㎡
220,000円
338
GA'-type
1DK
32.55㎡
[成約]
339
GB-type
1LDK
32.55㎡
[成約]
340
F'-type
1LDK
40.95㎡
195,000円
341
GB-type
1LDK
32.55㎡
152,000円
342
F'-type
1LDK
40.95㎡
195,000円
343
GB-type
1LDK
32.55㎡
152,000円
344
F'-type
1LDK
40.95㎡
195,000円
345
GB-type
1LDK
32.55㎡
152,000円
346
F'-type
1LDK
40.95㎡
195,000円
347
GB-type
1LDK
32.55㎡
[成約]
348
F'-type
1LDK
40.95㎡
195,000円
349
GA-type
1DK
32.55㎡
[成約]
350
I-type
2DK
46.20㎡
[非募集]
2F
214
E-type
1LDK
49.16㎡
[非募集]
215
F'-type
1LDK
40.95㎡
[非募集]
216
F-type
1LDK
40.95㎡
[非募集]
217
GB'-type
1LDK
32.55㎡
[非募集]
218
F-type
1LDK
40.95㎡
[非募集]
219
GB'-type
1LDK
32.55㎡
[非募集]
220
GA-type
1DK
32.55㎡
[非募集]
221
GA'-type
1DK
32.55㎡
[非募集]
222
GA-type
1DK
32.55㎡
[非募集]
223
GA'-type
1DK
32.55㎡
[非募集]
224
GA-type
1DK
32.55㎡
[非募集]
225
GA'-type
1DK
32.55㎡
[非募集]
226
GA-type
1DK
32.55㎡
[非募集]
227
GA'-type
1DK
32.55㎡
[非募集]
228
GA-type
1DK
32.55㎡
[非募集]
229
GA'-type
1DK
32.55㎡
[非募集]
230
GA-type
1DK
32.55㎡
[非募集]
231
GA'-type
1DK
32.55㎡
[非募集]
232
GA-type
1DK
32.55㎡
[非募集]
233
GA'-type
1DK
32.55㎡
[非募集]
トランクルーム  
234
GB-type
1LDK
32.55㎡
[非募集]
235
F'-type
1LDK
40.95㎡
[非募集]
236
GB-type
1LDK
32.55㎡
[非募集]
237
F'-type
1LDK
40.95㎡
[非募集]
238
GB-type
1LDK
32.55㎡
[非募集]
239
F'-type
1LDK
40.95㎡
[非募集]
240
GB-type
1LDK
32.55㎡
[非募集]
241
F'-type
1LDK
40.95㎡
[非募集]
242
GB-type
1LDK
32.55㎡
[非募集]
243
F'-type
1LDK
40.95㎡
[非募集]
244
GA-type
1DK
32.55㎡
[非募集]
245
I-type
2DK
46.20㎡
[非募集]
1F サブエントランス   駐輪場 シアタールーム ゴミ置き場 フィットネス・ゴルフレンジ メールコーナー コンシェルジュ
カウンター
スタディルーム
  北向き
横にスクロールできます

最終更新日:2026年4月14日

お問合せは下記のフリーコールからどうぞ

0120-216-626

上記の番号をタップしてお電話ください。
[電話受付時間] 10:00~19:00

※繋がりにくい場合は、
03-5343-6030へお電話ください。

メールでのお問合せはこちら

メールのお問合せは24時間365日受付しています。

PLAN
-プラン-

快適で安らぎのある暮らしを可能にする、上質な住まい。

ゆとりを感じられる居室、バランスよく備えた高品質の設備、見た目もスタイリッシュで美しいデザイン性。
本物件ではシングルからファミリー層をターゲットとした、1DK~4LDKの豊富な間取りプランをご用意しました。

また、住戸によってはカウンターキッチンを用意しており、料理をしながらご家族とのコミュニケーションを取るじことができます。
さらに、収納力のあるWICなど各種設備においても細部まで創意工夫を凝らしており、その質の高さを日々体感できることでしょう。


CONCEPT
-コンセプト-

訪れる人々の視線を惹きつける、赤羽エリアの新たなシンボル。

堂々と構える雄大な外観がもたらす、圧倒的な存在感。そして、モダンな外観が目を惹く「ロイヤルパークス赤羽ノース」。
その姿は赤羽エリアの新たなシンボルとして、人々の羨望を集めることでしょう。
各住戸においても機能とデザインを高い次元で両立し、居心地の良いプライベート空間を実現しました。

高級賃貸マンション:ロイヤルパークス赤羽ノース:コンセプト画像 高級賃貸マンション:ロイヤルパークス赤羽ノース:コンセプト画像

上質感漂う共用空間がワンランク上の日常を演出する。

建物内へと歩みを進めると迎えてくれるのは、二層吹き抜け構造の開放感あふれるエントランスホール。
ホテルライクな装いで帰宅した居住者を私邸へと優しくエスコートします。

そのほかにも、ラウンジやパーティールーム、ゴルフレンジ、ゲストルームなど、本物件では共用部も充実。
さらに、コンシェルジュサービスも採用しており、きめ細やかなサービスで居住者の快適な暮らしをサポートします。

高級賃貸マンション:ロイヤルパークス赤羽ノース:コンセプト画像 高級賃貸マンション:ロイヤルパークス赤羽ノース:コンセプト画像

LOCATION
-周辺環境-

自然と機能性が共存する、魅力溢れる住環境。

本物件が位置する神谷地区は、歴史と利便性が調和した落ち着きある住宅地として、ファミリー層をはじめとする多くの人々に注目されています。

近隣には「イオンスタイル赤羽」や「ニトリ赤羽店」といった商業施設もあり、日々のお買い物にも困ることはありません。
また、「北区立北運動場」など自然環境も整っており、隅田川沿いの遊歩道でジョギングや犬の散歩を楽しむ人の姿も多く見られます。
生活に必要な機能がコンパクトに整ったこのエリアは、暮らすにとって住みやすい住環境といえるでしょう。

イオンスタイル赤羽

イオンスタイル赤羽

ニトリ赤羽店

ニトリ赤羽店

赤羽スズラン通り商店街振興組合

赤羽スズラン通り商店街振興組合

北区立神谷図書館

北区立神谷図書館

北区立北運動場

北区立北運動場

隅田川

隅田川

※掲載の周辺環境は変更になる場合があり、将来にわたり保証されるものではありません。

MAP
-現地案内図-

COMMON SPACE
-共用設備-

充実のクオリティを誇る、先進の設備・仕様。

毎日使うものだからこそ高品質な機能を取り入れ、使いやすさにこだわったロイヤルパークス赤羽ノースの設備・仕様。
ゆったりとしたスペースを確保した使いやすいシステムキッチンをはじめ、清潔感のある洗面台、豊富な収納など、
本物件が提案する質の高い設備・仕様が、住まいの快適性に直結します。

さらに、フィットネスジムやゴルフレンジ、入居者専用ドッグランなど共用部も充実。
こだわりの先進の設備が、住まう人のアーバンライフをサポートします。

高級賃貸マンション:ロイヤルパークス赤羽ノース:設備・仕様画像 高級賃貸マンション:ロイヤルパークス赤羽ノース:設備・仕様画像

EQUIP LIST
-設備一覧-

オートロック
オートロック
防犯カメラ
防犯カメラ
TVモニター付インターホン
TVモニター付インターホン
フローリング
フローリング
エアコン
エアコン
システムキッチン
システムキッチン
ガスコンロ
ガスコンロ(一部住戸は2口)
食洗機
食器洗浄乾燥機(一部住戸)
追焚機能
追焚機能
浴室換気乾燥機
浴室換気乾燥機
独立洗面台
独立洗面台
シャワートイレ
シャワートイレ
インターネット料金無料
インターネット料金無料
BS・CS・CATV対応
BS・CS・CATV対応
宅配ボックス
宅配ボックス
メールコーナー
メールコーナー
トランクルーム
トランクルーム
フィットネスジム
フィットネスジム
コンシェルジュサービス
コンシェルジュサービス
駐車場
駐車場
駐輪場
駐輪場・バイク置場
ペット相談可
ペット相談可
楽器相談可
楽器相談可

※設備一覧画像はイメージとなっており、実際の仕様とは異なります。

OUTLINE
-物件概要-

物件名
ロイヤルパークス赤羽ノース
所在地
東京都北区神谷3丁目15番5号(住居表示)
Google Mapで開く
交通
東京メトロ南北線「志茂」駅 徒歩8分
JR埼京線他「赤羽」駅 徒歩15分
構造
鉄筋コンクリート造 地上10階建
総戸数
474戸
間取り
1DK / 1LDK / 2LDK / 3LDK / 4LDK
専有面積
1DK:32.55㎡~32.55㎡
1LDK:32.55㎡~49.16㎡
2LDK:44.10㎡~65.50㎡
3LDK:65.10㎡~78.75㎡
4LDK:83.00㎡~90.11㎡
賃料
空室一覧をご参照ください。
共益費
空室一覧をご参照ください。
契約形態
普通賃貸借契約
契約期間
2年間(更新可)
更新料
新賃料の1ヶ月分
敷金
賃料の1ヶ月分 ※保証会社利用必須。
礼金
賃料の0~1ヶ月分 ※募集住戸によって異なります。詳細は空室一覧をご参照ください。
住宅総合保険等
指定火災保険要加入
共用施設
スタディールーム、キッズルーム、パーティールーム、ゴルフレンジ、シアタールーム
ラウンジ、ゲストルーム、フィットネスルーム、ドッグラン
※ロイヤルパークス赤羽サウスの入居者の利用可能。
※共用部のご利用には予約が必要な場合があり、使用料金がかかる場合があります。
駐車場
118台(機械式67台、平置き50台、身障者用1台) ※空き状況はお問い合わせください。
駐車場料金
平置き:月額33,000円(別途消費税)
機械式:月額23,000円(別途消費税)
機械式ハイルーフ:月額28,000円(別途消費税)
駐車場サイズ
平置き:全長5,000mm、全幅2,500mm、全高・重量 制限無し
機械式:全長5,050mm、全幅1,850mm、全高1,550mm、重量2,300kg
機械式ハイルーフ:全長5,050mm、全幅1,850mm、全高2,100mm、重量2,300kg
駐輪場
591台(2段ラック494台、平置き89台、傾斜ラック8台) ※空き状況はお問い合わせください。
駐輪場料金
月額400円~800円(別途消費税)
バイク置場
24台 ※空き状況はお問い合わせください。
バイク置場料金
月額5,000円(別途消費税)
トランクルーム
有り ※空き状況はお問い合わせください。
トランクルーム料金
月額10,000円(別途消費税)
ペット
相談可(中型犬以下2匹もしくは猫2匹まで、敷金1ヶ月積み増し)
その他諸条件
SOHO不可、事務所不可・楽器相談可(アップライトピアノのみ)
竣工
2025年9月
取引形態
媒介
備考
※間取図等の資料と引渡し時の現況が異なる場合は、引渡し時の現況を優先とさせていただきます。
※入居審査の結果、お断りさせていただく場合もございますが、その理由については一切申し上げられません。
※仲介手数料として、月額賃料の1ヶ月分(別途消費税)をお支払いいただきます。
※諸条件その他詳細は、お気兼ねなくお問い合わせください。
お問い合わせ先
株式会社アライバル
住所:東京都中野区中野5-52-15 中野ブロードウェイ10F
電話:0120-216-626
宅建免許:東京都知事(4)第87502号
加盟団体:(公社)東京都宅地建物取引業協会 (公社)全国宅地建物取引業保証協会

ロイヤルパークス赤羽ノースをご検討のお客様は以下の高級賃貸マンションもご覧になっています。

お問合せは下記のフリーコールからどうぞ

0120-216-626

上記の番号をタップしてお電話ください。
[電話受付時間] 10:00~19:00

※繋がりにくい場合は、
03-5343-6030へお電話ください。

メールでのお問合せはこちら

メールのお問合せは24時間365日受付しています。

 

新宿区・渋谷区を中心とした高級賃貸・タワーマンション情報サイト-アライバル・ラグジュアリースタイル-

株式会社アライバル<媒介> 東京都中野区中野5-52-15 中野ブロードウェイ10F TEL:0120-216-626

宅建免許:東京都知事(4)第87502号 加盟団体:(公社)東京都宅地建物取引業協会 (公社)全国宅地建物取引業保証協会