高級賃貸マンション「ザ・グラヴィティ新宿」の賃貸募集を開始しました。
12月末日までのご成約に限り、仲介手数料無料・礼金0ヶ月・フリーレント1ヶ月にてご案内致しております。

各部屋をタップクリックすると間取り図が表示されます。
最終更新日:2025年12月5日
お問合せは下記のフリーコールからどうぞ
上記の番号をタップしてお電話ください。
[電話受付時間] 10:00~19:00
※繋がりにくい場合は、
03-5343-6030へお電話ください。

メールのお問合せは24時間365日受付しています。


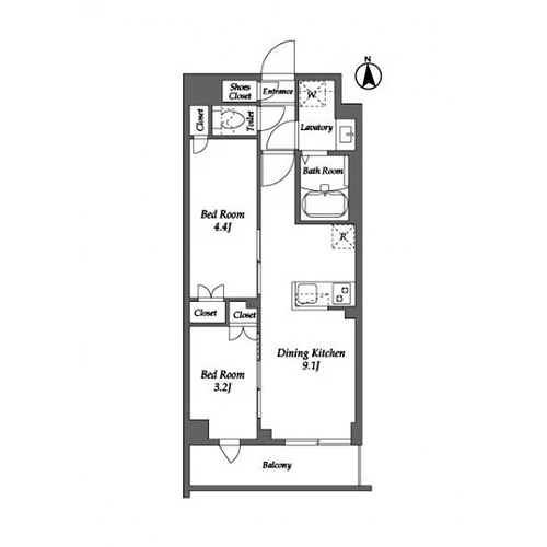
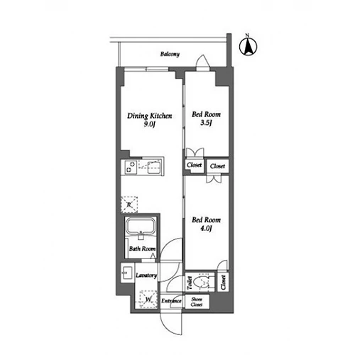
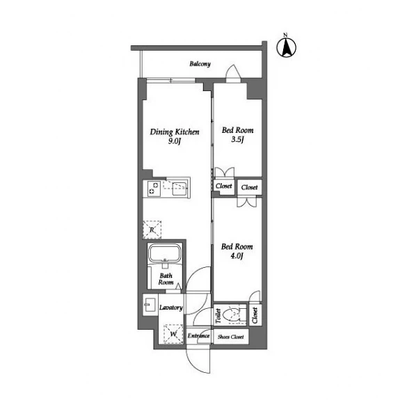
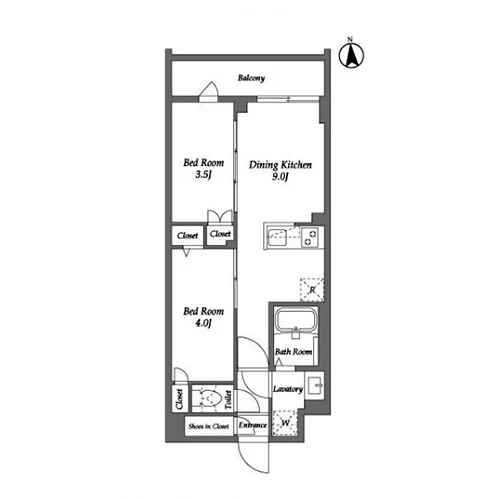
本物件の間取りは主に2DK・2LDKを採用し、多様なニーズに対応する住戸プランをご用意しました。
各住戸では、設備や収納スペースをバランス良く配置されており、高い居住性を実現。
さらに、ルームカラーもセンスよくまとめられており、高級感を演出しています。
洗練された住空間がもたらすワンランク上の心地よさを是非体感してください。


本物件からはビッグターミナルの新宿駅も徒歩圏内となっており、都内各地への移動も自由自在。
近隣には多彩な店舗が並ぶコリアンタウンがあり、ショッピングや韓国グルメを存分に楽しむことが可能です。
その他にも、生活圏内には大規模な商業施設が数多く集まっており、エネルギッシュな街並みが広がっています。
都心ならではの活気と利便に満ちたこの街と共に、豊かな日常をお楽しみください。



本物件では入居者の暮らしを快適にするため、高品質な先進の設備・仕様を多数セレクトしました。
たとえば、バスルームには換気乾燥機付きとなっており、天候を気にせず気軽に洗濯物を干すことが可能です。
その他にも、お手入れしやすいシステムキッチンや機能的な独立洗面台、防犯性を高めるダブルロック式の玄関扉など、
豊富なラインナップが居住者のワンランク上のマンションライフをサポートします。
※設備一覧画像はイメージとなっており、実際の仕様とは異なります。
