高級賃貸マンション「ZOOM本郷」の賃貸募集を開始しました。
4月末日までのご成約に限り、仲介手数料無料・礼金0ヶ月・フリーレント付きにてご案内致しております。

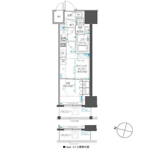
各部屋の枠内をクリックすると間取り図が表示されます。
※只今、フリーレント付き(当月+翌月)キャンペーン実施中!
最終更新日:2026年4月21日
お問合せは下記のフリーコールからどうぞ
上記の番号をタップしてお電話ください。
[電話受付時間] 10:00~19:00
※繋がりにくい場合は、
03-5343-6030へお電話ください。

メールのお問合せは24時間365日受付しています。


ZOOM本郷では、都心でのスマートな暮らしを叶えたい入居者様に寄り添った住空間を厳選してラインナップ。
それぞれに個性のある間取りプランを、7タイプご用意いたしました。
一部住戸にはカウンターキッチンを採用し、リビング・ダイニングを広々とお使いいただけます。
さらに、ベッドルームとの間をスライド扉にすることで、暮らし方にフィットする室内環境を追求できます。
創意と工夫をふんだんに織り重ねた空間設計で、身も心も豊かになる暮らしをご提案します。



本物件は最寄りの「本郷三丁目」駅まで、徒歩4分という好立地です。
都営大江戸線と東京メトロ丸ノ内線にアクセスでき、都心の主要なエリアへスムーズに通勤・通学できます。
近隣にはスーパー・大学病院のほか、緑ゆたかな公園やレジャースポットなども充実。
落ち着きのある住環境に根ざした、利便性の高いマンションライフをお過ごしください。



ZOOM本郷では、スマートフォン・交通系ICカード・指紋認証でお部屋を施錠できるスマートロックを採用しています。
自動ロックにより鍵の閉め忘れを防げるため、入居者様のセキュリティ面に大きく寄与いたします。
さらに、冬の寒い足元を温めてくれる床暖房や、冷めてしまったお湯を温め直せる追焚機能付きのバスルームなど、
日常生活の利便性がワンランクアップする最先端の設備・仕様を豊富に備えております。
※設備一覧画像はイメージとなっており、実際の仕様とは異なります。
