
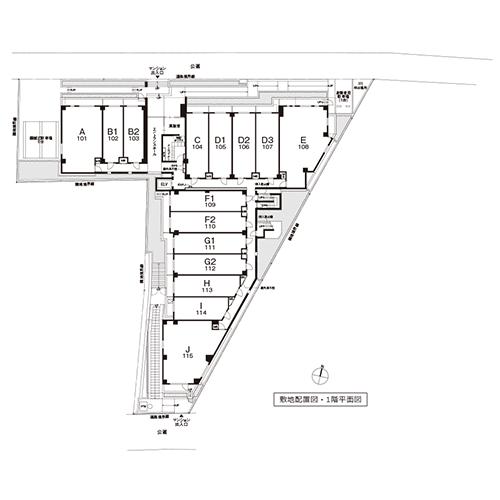
間取りはシングル向けの1K・1Rからゆとりあるリビング・ダイニングを擁した3LDKまで幅広くご用意しており、
プライベートなひとときはもちろん、ご家族とのコミュニケーションも深まる住戸プランを実現しました。
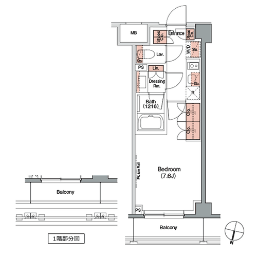
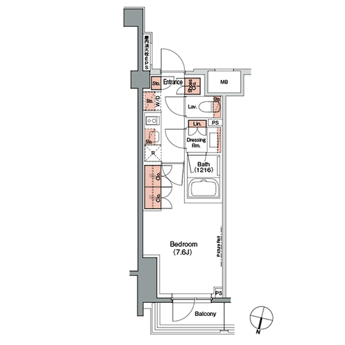
また、お部屋のルームカラーは、爽やかな「ホワイト」、ナチュラルテイストな「ミディアム」、落ち着いた「ダーク」の3種類。
どのパターンもフローリングやクロス、建具、設備の色彩をセンス良く組み合わせており、高級感を演出しています。
プライベートなひとときを高品質な住まいと共に過ごす暮らし。それは、心と身体を解きほぐす安息の時間です。