プレミスト板橋

お問い合わせ  
sp
空室・賃料 sp 間取り図一覧 sp フロアマップ

プレミスト板橋:ルームプラン

sp

プレミスト板橋:ルームプラン:見出し

sp

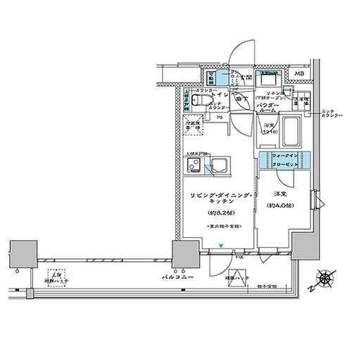
間取りは約31uの1LDKタイプ。間仕切り扉によって2室一体利用も可能な人気の間取りです。
本物件では全住戸にウォークインクローゼットとカウンターキッチンを採用し、おしゃれな生活空間を演出しました。
また、フローリングや建具、各種設備の色彩もセンス良くコーディネートされており、高級感を高めています。

sp
sp

プレミスト板橋:室内写真

sp
プレミスト板橋:室内写真01
sp
pagetop
sp