ZOOM秋葉原EAST

お問い合わせ  
sp
空室一覧・賃料 sp 間取り図一覧

ZOOM秋葉原EAST:ルームプラン

sp

ZOOM秋葉原EAST:ルームプラン:見出し

sp

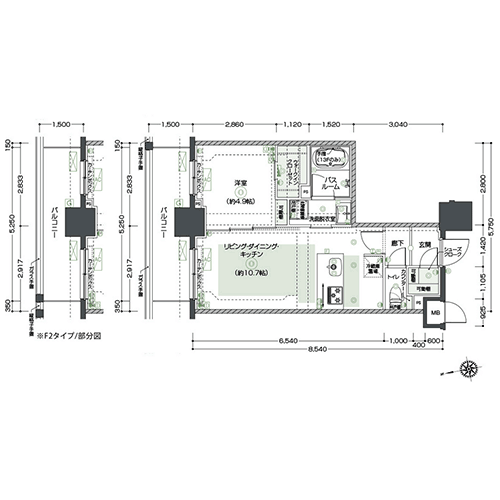
間取りは20u台の1Kと約40uの1LDKがメインとなっており、シングル・DINKS層を想定した住戸プランをご用意しました。
1Kは約7〜8畳の広さを確保した居室と高品質な水廻りがポイント。1LDKはお洒落なカウンターキッチンが魅力的です。
本物件がお届けする優れた生活空間と共に、心休まる安らぎの時間をお過ごしください。

sp

※間取り図と現況に相違がある場合は現況優先と致します。

sp

ZOOM秋葉原EAST:室内写真

sp
ZOOM秋葉原EAST:ルームプラン01

※掲載の写真はプランの一例です。

sp
pagetop
sp