
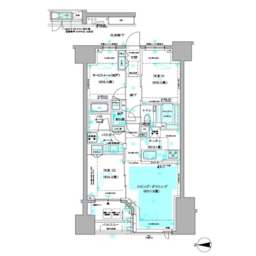
-間取り図-

ディームス方南町では、DINKS・ファミリー層を想定した住戸プランを展開。
専有面積は約67㎡~約100㎡。間取りは1LDK+2Sタイプから4LDKタイプまで採用し、バリエーションも豊富です。
各住戸では、広めの専有面積を確保したリビング・ダイニングをはじめ、お洒落なカウンターキッチン、
豊富な収納スペース、高品質の設備・仕様など、高い居住性を実現しました。
暮らしやすく温もりを感じる室内では、ご家族の団欒もより深まることでしょう。
※掲載の間取り図は完成予定のものとなっており、実際とは異なる場合があります。