高級賃貸マンション:グランパセオ新宿のロゴ
高級賃貸マンション:グランパセオ新宿のお問い合わせ窓口
高級賃貸マンション:グランパセオ新宿のロゴ

PLAN
-プラン-

センス良くまとめられた住空間。

無垢なコンクリート仕上げの壁面をはじめ、スポットライト照明やタイル張りの床材、お洒落な設備・建具など、
本物件ではデザイナーズマンションに相応しい意匠性の高い住まいを創りあげました。

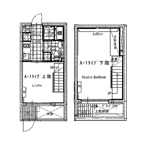
間取りはシンプルな1Kと1LDKの2タイプ。一部住戸では、メゾネットタイプも採用しています。
室内は柱が突き出さないアウトフレーム工法によって、すっきりとした空間を実現。家具の配置もしやすい構造です。

※室内の設備・仕様やバルコニーは、各タイプによって多少異なります。
PAGE TOP

グランパセオ新宿をご検討のお客様は以下の高級賃貸マンションもご覧になっています。

お問合せは下記のフリーコールからどうぞ

0120-216-626

上記の番号をタップしてお電話ください。
[電話受付時間] 10:00~19:00

※繋がりにくい場合は、
03-5343-6030へお電話ください。

メールでのお問合せはこちら

メールのお問合せは24時間365日受付しています。

 

新宿区・渋谷区を中心とした高級賃貸・タワーマンション情報サイト-アライバル・ラグジュアリースタイル-

株式会社アライバル<媒介> 東京都中野区中野5-52-15 中野ブロードウェイ10F TEL:0120-216-626

宅建免許:東京都知事(4)第87502号 加盟団体:(公社)東京都宅地建物取引業協会 (公社)全国宅地建物取引業保証協会