高級賃貸マンション「ロイヤルパークス品川」の賃貸募集を開始しました。
5月末日までのご成約に限り、仲介手数料無料・礼金0ヶ月にてご案内致しております。

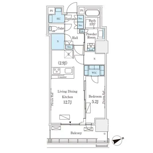
各部屋をタップクリックすると間取り図が表示されます。
最終更新日:2026年4月28日
フロアマップ(建物全体図)はこちらお問合せは下記のフリーコールからどうぞ
上記の番号をタップしてお電話ください。
[電話受付時間] 10:00~19:00
※繋がりにくい場合は、
03-5343-6030へお電話ください。

メールのお問合せは24時間365日受付しています。


間取りは1LDKから4LDKまで豊富に取り揃えており、そのバリエーションは60種類以上。
専有面積も約40~121㎡と幅広く、多様なライフスタイルに対応する住戸プランをご用意しました。
各住戸では上品なカラーを用いてセンス良くコーディネートされており、モダンな雰囲気を創りあげています。
また、本物件の22階以上はプレミアムフロアとなっており、ビルトイン式の食洗機やオーブンなど、ワンランク上の設備も採用しました。
お部屋の隅々にまで息づく高い美意識が、日々の暮らしに彩りを添えることでしょう。



堂々と構える雄大な外観がもたらす、圧倒的な存在感と上質感。そして、洗練された外観デザインが目を惹く「ロイヤルパークス品川」。
開放感のあるエントランスをはじめ、ホテルライクなラウンジ、ワークスペース、フィットネス施設など、
本物件では多彩な共用設備が揃っており、質の高い室内設備と合わせ、快適な生活空間をお届けします。
希少価値の高い立地と高水準の住まいがもたらす新たな日常。彩り豊かな都心生活は、すぐ目の前に広がっています。


利便性と未来志向の都市環境を兼ね備えた港区港南エリアに位置する本物件。
品川駅から徒歩約11分で近接し、2024年度末に本開業を迎える高輪ゲートウェイ駅も至近となっています。
この新駅の完成によって、街全体がさらに活気を帯び、アクセスの良さが一層際立つことでしょう。
その他にも、「TAKANAWA GATEWAY CITY」をはじめとした大規模な開発も進行中となっており、
このエリアはビジネスと住居が融合した最先端の都市空間へと進化しています。
歴史と未来が交差する住環境と共に、これまでとは違う新たな都心生活をお過ごしください。
高輪ゲートウェイ駅
ウイング高輪
アトレ品川
エキュート品川
天王州アイルボートウォーク
品川インターシティ
※掲載の周辺環境は変更になる場合があり、将来にわたり保証されるものではありません。



入居者同士のコミュニケーションの場としても利用できるパーティールームや開放感あるスカイデッキをはじめ、
気軽に汗を流せるフィットネスルーム、落ち着いた空間で作業が可能なスタディールームなど、本物件は共用設備も充実しています。
また、居住者に快適なマンションライフをお届けするため、本物件ではコンシェルジュサービスも採用。
各種取次・手配など、人の温もりを感じられる細やかなサービスをご利用いただけます。

※運用方法・料金等につきましては、予告なく変更となる可能性がありますので、予めご了承ください。

※設備一覧画像はイメージとなっており、実際の仕様とは異なります。
